Toutes les informations complémentaires

AVENUE DE LA MARNE – NICE

Référence : 782
Vendu

200 000 €

Nice - 06000 - 31 AVENUE DE LA MARNE
  • 66.3 m²

  • 2 Chambres

  • 1 Salle de bains
Découvrez les plans
Contactez-nous
Trouver un bien similaire ?
Thomas VINCENT
Co-Gérant | Expert Immobilier
thomas@immo-vendu.fr
Frais de notaire estimés
14 800€
ENREGISTRER MA RECHERCHE
Sa petite histoire

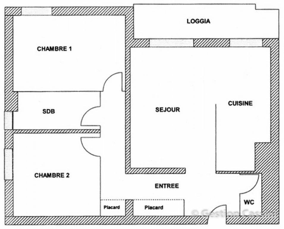
AVENUE DE LA MARNE - NICE : Dans immeuble des années 1970, très bel appartement 3 pièces en étage élevé avec double ascenseurs. Appartement en très bon état, bien agencé avec de nombreux rangements, séjour avec cuisine ouverte donnant sur terrasse offrant une vue dégagée sur la verdure. Deux chambres, salle de douche et wc séparé. Cave. Possibilité d'acheter un parking privé en supplément (+12.500 €). Arrêt de bus à proximité immédiate de l'immeuble.

Surfaces

  • Surface totale 59,5 m²
  • Entrée : 10,6 m²
  • Salon : 22,42 m²
  • Chambre : 9,36 m²
  • Chambre : 11,63 m²
  • Salle de douche : 4,32 m²
  • Toilettes : 1,17 m²
  • Terrasse : 6,8 m²
  • Cave : 3,74 m²

Informations

Année de construction:
1970
État:
Bon état
Surfaces:
66,3 m²
Étage:
11ème
Pièces:
3
Salles de bains:
1
Type de chauffage:
Gaz
Accès au chauffage:
Collectif
Appareil de chauffage:
Central
Appareil de chauffage de l'eau:
Chaudière
Accès au chauffage de l'eau:
Individuelle
Système d'évacuation des eaux usées:
Tout à l'égout

Prestations

  • Ascenseur
  • Interphone

Proximités

Mentions légales

Énergie - Consommation conventionnelle
220 (kWh/m².an)
Énergie - Estimation des émissions
51 (kg CO2/m².an)
Loi Carrez
59.5 (m²)
Taxe foncière
992 (€ / an)
Diagnostique de Performance Energétique
D
Vous souhaitez des informations complémentaires ?
AVENUE DE LA MARNE – NICE - 200 000 €
Nice - 06000 - 31 AVENUE DE LA MARNE
Référence : 782
Ce champ est obligatoire
required>
Ce champ est obligatoire
Format non valide
Format de messagerie non valide
Format de messagerie non valide
Vous devez accepter les conditions générales
Cette annonce à été vue
505 fois