Toutes les informations complémentaires

LE PORT – NICE

Référence : 686
Vendu

530 000 €

Nice - 06300 - 14 RUE FRANCOIS GUISOL
  • 92.3 m²

  • 2 Chambres

  • 1 Salle de bains
Découvrez les plans
Contactez-nous
Trouver un bien similaire ?
Thomas VINCENT
Directeur Général | Expert Immobilier
thomas@immo-vendu.fr
Frais de notaire estimés
37 570€
ENREGISTRER MA RECHERCHE
Sa petite histoire

Dans résidence récente des années 2000 PORT NICEA, spacieux appartement 3 pièces de 92.30 m² avec terrasse et balcon en étage élevé. Appartement très bien agencé grand séjour avec cuisine attenante, dressing, deux chambres avec placards. Appartement au calme traversant sur cour. Cave. Proche toutes commodités, port et futur tramway.

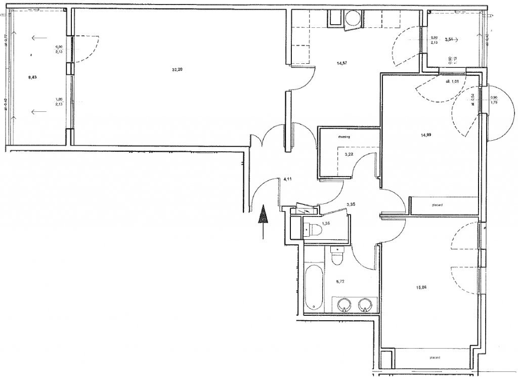
Surfaces

  • Surface totale 92,3 m²
  • Entrée : 4 m²
  • Salon : 31,3 m²
  • Cuisine : 13,8 m²
  • Couloir : 3,2 m²
  • Dressing : 3,2 m²
  • Chambre : 14,8 m²
  • Chambre : 15,1 m²
  • Salle de bains / toilettes : 5,6 m²
  • Toilettes : 1,2 m²
  • Terrasse : 11,94 m²

Informations

Année de construction:
2000
État:
Bon état
Surfaces:
92,3 m²
Étage:
4ème
Pièces:
3
Salles de bains:
1
Type de chauffage:
Electrique
Accès au chauffage:
Individuel
Appareil de chauffage:
Climatisation
Appareil de chauffage de l'eau:
Chauffe-eau
Accès au chauffage de l'eau:
Individuelle
Système d'évacuation des eaux usées:
Tout à l'égout

Prestations

  • Air conditionné
  • Ascenseur
  • Double vitrage
  • Interphone

Proximités

Mentions légales

Énergie - Consommation conventionnelle
114 (kWh/m².an)
Énergie - Estimation des émissions
3 (kg CO2/m².an)
Loi Carrez
92.30 (m²)
Taxe foncière
1295 (€ / an)
Vous souhaitez des informations complémentaires ?
LE PORT – NICE - 530 000 €
Nice - 06300 - 14 RUE FRANCOIS GUISOL
Référence : 686
Ce champ est obligatoire
required>
Ce champ est obligatoire
Format non valide
Format de messagerie non valide
Format de messagerie non valide
Vous devez accepter les conditions générales
Cette annonce à été vue
472 fois